Save
Ask
Tour
Hide
$50,000
1 Day On Site
550 NW 29th StMiami, FL 33127
For Rent|Commercial Lease|Active
0
Beds
0
Total Baths
7,000
SqFt
$7
/SqFt
1981
Built
County:
Miami-Dade
Call Now: 305-351-7766
Is this the listing for you? We can help make it yours.
305-351-7766



Save
Ask
Tour
Hide
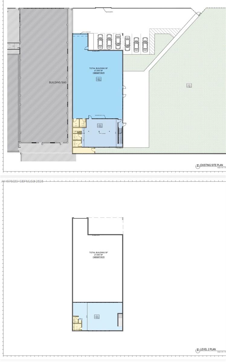
20,000-square-foot private, fully enclosed property located in the heart of Wynwood — Miami's premier cultural and creative district — offering 7,000 square feet of covered industrial space perfect for large corporate offices as well as engineered for high-impact brand activations, sponsor integrations, and production-forward environments.
Save
Ask
Tour
Hide
Listing Snapshot
Price
$50,000
Days On Site
1 Day
Bedrooms
N/A
Inside Area (SqFt)
7,000 sqft
Total Baths
N/A
Full Baths
N/A
Partial Baths
N/A
Lot Size
0.4821 Acres
Year Built
1981
MLS® Number
A11976620
Status
Active
Property Tax
N/A
HOA/Condo/Coop Fees
N/A
Sq Ft Source
N/A
Friends & Family
Recent Activity
| yesterday | Listing first seen on site | |
| yesterday | Listing updated with changes from the MLS® |
General Features
Disclosures
Owner Is Listing Agent
SqFt Total
7000
Zoning
6100
Save
Ask
Tour
Hide
Community Features
MLS Area
31
Listing courtesy of Jordan Karp LLC
The data relating to real estate for sale on this web site comes in part from the Miami Association of Realtors, Realtor Association of Greater Ft. Lauderdale, and the South Broward Board of Realtors. Information is deemed reliable but not guaranteed. Copyright © 2026, Miami Association of Realtors, Realtor Association of Greater Ft. Lauderdale, and the South Broward Board of Realtors. All rights reserved. The information being provided is for consumers' personal, non-commercial use and may not be used for any purpose other than to identify prospective properties consumers may be interested in purchasing. The use of search facilities of data on the site, other than a consumer looking to purchase real estate, is prohibited.
The data relating to real estate for sale on this web site comes in part from the Miami Association of Realtors, Realtor Association of Greater Ft. Lauderdale, and the South Broward Board of Realtors. Information is deemed reliable but not guaranteed. Copyright © 2026, Miami Association of Realtors, Realtor Association of Greater Ft. Lauderdale, and the South Broward Board of Realtors. All rights reserved. The information being provided is for consumers' personal, non-commercial use and may not be used for any purpose other than to identify prospective properties consumers may be interested in purchasing. The use of search facilities of data on the site, other than a consumer looking to purchase real estate, is prohibited.
Neighborhood & Commute
Source: Walkscore
Disclosure: Community information and market data powered by Constellation Data Labs. Information is deemed reliable but not guaranteed.
Save
Ask
Tour
Hide




Did you know? You can invite friends and family to your search. They can join your search, rate and discuss listings with you.